BESICHTIGUNGSSTOP!! PROVISIONSFREI !!! Aus ALT wird NEU – MODERN – SANIERT- MEHR MODERNER PLATZ

59199 Bönen, Doppelhaushälfte zum Kauf

Referenz

Dieses Objekt wurde bereits erfolgreich vermittelt.

Objekt­beschreibung

Beschreibung

Das Einfamilienhaus wurde 2020 saniert
Alles komplett Renoviert - Sie können SOFORT einziehen
Das Einfamilienhaus ist einseitig angebaut

Wasserrohen für Frisch -so wie Abasserleitungen sind im ganzen Haus erneuert
Stromleitung Neu
Heizung Neu
Haus wurde von Außen gedämmt mit 10 cm WDVS und mit EPS Platten NEU verkleidet und modern gestrichen
Alle Böden neu
Alle Bäder neu
Dachboden wurde ebensfalls gedämmt Zusätzlich ausgebaut
Eingangstüre neu
Alle Zimmertüren sind inklusive Rahmen NEU

Es handelt sich bei diesem Objekt um eine Doppelhaushälfte, es verfügt über 3 Stockwerke mit insgesamt 5 Zimmern.
Das Dachgeschoss ist ausgebaut.
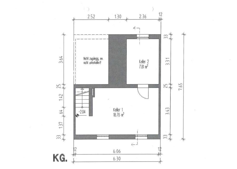
Im Teilkeller ist die Möglichkeit einen Hobbyraum einzurichten oder Ihre Vorräte zu lagern
Hier wurde eine neue Gas- Therme eingebaut

Im Erdgeschoss befinden sich ein Hintereingang durch zwei Dielen, ein G-WC, eine Wohn-Küche ein Wohnzimmer.
Alle Räume im Erdgeschoss haben einen Bodenbelag aus Fliesen oder Laminat und verfügen über neue Heizkörper
Der Hinterausgang führt zur großen Garten an der Seite neben dem Haus kann eine Garage oder Carport erstellt werden

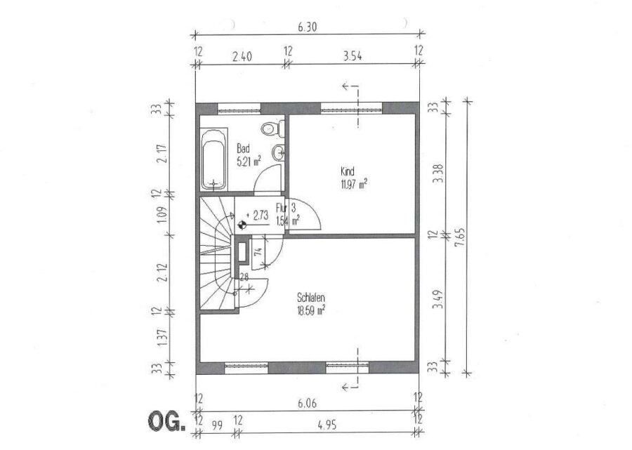
Im Obergeschoss befinden sich 2 Schlafräume, eine Diele und ein wunderschönes Badezimmer
inklusive WC mit Dusche und einem Fenster
Im Dachboden ist ein großer Vielseitiger Raum entstanden der über 2 Dach Fenster verfügt
Alle Stockwerke bis hoch zum Dachboden sind über eine massive Holztreppe , zu erreichen

Dieser Raum dient als Schlafraum , Büro oder Jugendzimmer genau das richtige , verfügt über 2 neue Dach Fenster
Im Kellergeschoss befinden sich 2 Räume.
Die Heizungstherme ist hier untergebracht

Alle Fenster oder Ausgangstüren sind mit Doppelverglasung ausgestattet

Ausstattung

Doppelverglasung
Im Erdgeschoss
Eingangstüren NEU
Fliesen oder Laminat neu verlegt
neue Heizkörper
Gäste WC
Obergeschoss
Badezimmer mit WC und Duschen
Dachboden wurde ausgebaut
Neue Gasheizung
Wassleitungen sind komplett erneuert
Kaminofen Allesbrenner kann im Wohnzimmer zusätzlich eingebaut werden
Teilunterkellert

Es gibt ein 2. Haus in ähnlicher Aussattung ( bei einer Besichtigung schauen wir uns gerne Beide Häuser an)

Sonstige Informationen

Bei Fragen über Finanzierungen stehen wir mit den richtigen Ansprechpartnern gerne zur Seite
verschiedene Namenhafte Banken stehen ständig zur Verfügung

Haftungsausschluss

Rossimmobilien kann, trotz aller Sorgfalt bei der Angebotserstellung, keine Gewähr für die Angaben zu Größe und Beschaffenheit etc. des angebotenen Objektes übernehmen, da diese Angaben sich allein auf Informationen die durch den Verkäufer/Vermieter des angebotenen Objektes zur Verfügung gestellt werden, stützen. Es obliegt dem Interessenten/Käufer diese Angaben auf ihre Richtigkeit hin zu überprüfen. Dies gilt auch für alle erfolgten Angaben zu den Objekten im Exposé oder anderen Angebotsquellen, sowie öffentlich gemachten Aussagen, Zahlen und Prognosen.

Lage

Das liebevoll sanierte Haus steht in einer ruhigen Seitenstraße
Nur wenige Minuten sind Sie im Stadtzentrum und finden alles was Sie zum Alltag brauchen
Bönen ist eine Gemeinde im Kreis Unna in Nordrhein-Westfalen. Sie liegt im Übergangsgebiet vom Ruhrgebiet zur Soester Börde.
Die Gemeinde Bönen besteht aus den sechs Ortsteilen Altenbögge-Bönen, Bramey-Lenningsen, Flierich, Nordbögge, Osterbönen und Westerbönen.

Die dargestellte Position der Immobilie ist nur eine ungefähre Angabe.

Darstellung der Immobilien mit WP-ImmoMakler und Daten aus