Dieses Objekt wurde bereits erfolgreich vermittelt.
das Objekt liegt in einer ruhigen Seitenstrasse im Nebenort Myhl
Hier entsteht ein HAUS in dem alle Geneartionen Platz zusammen finden können
Auch eine Vermietung zum Teil oder komplett könnte Interessant sein
Einfach ansehen und staunen
NOCH KÖNNEN FARBEN MITBESTIMMT WERDEN
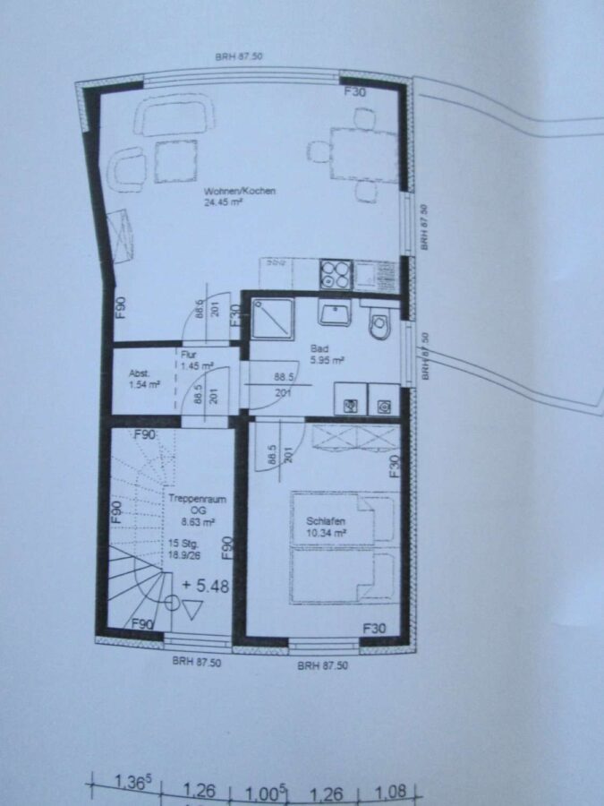
3 Wohnungen zum Teil mit Gartenzugang
je ein Tolles Badezimmer mit Fenster#
elektr. Rolläden an allen Fenstenr
Einen Abstellraum
Ein Schlafzimmer
und ein helles Wohn-Esszimmer inkl offener Küche
Hochwertige Verarbeitung
Im Dachboden könnte ein Teenie seinen Platz finden ein eigenes Reich mit eigenen Eingang inkl zusätzlichen Veluxfenstern bieten viel Licht
Hochwertige Bdenbeläge - Garnit oder Fliesen...alles nach Absprache...je nach Geschmack
Edelstahlgeländer
Zum selber Bewohnen oder auch zur Vermietung eine gute Anlage
FERTIGSTELLUNG FÜR JAN 2015 GEPLANT
bei Finanzierungsfragen stehen wir mit den richtigen Ansprechpartnern zur Seite
einfach fragen !!!!
Diese Immobilie befindet sich im Wassenberger Einkaufsgebiet und dank des regen Passantenverkehrs, ist man mitten im Leben. Dennoch ist es ruhig gelegen und man kann in ruhe Arbeiten. Gesehen werden aber dennoch produktiv Arbeiten ist hier möglich.
Wassenberg liegt verkehrsgünstig durch den Autobahnanschluss der A46 nach Düsseldorf, den man in ca. 10 Minuten Fahrzeit erreicht.
Die Stadt Wassenberg liegt nahe der Grenze zu den Niederlanden im Städtedreieck Aachen – Mönchengladbach – Köln. Die nächstgrößere Stadt in den Niederlanden ist Roermond. In Wassenberg befinden sich alle Einrichtungen für ein angenehmes Leben.
Mit dem Laden der Umgebungskarte akzeptieren Sie die Datenschutzerklärung von Google.
Sie aktivieren damit auch die Google Adressvervollständigung in der Umkreissuche.
Die dargestellte Position der Immobilie ist nur eine ungefähre Angabe.