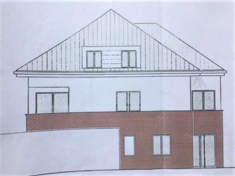
Luxuswohnungen NEUBAU Penthaus mit Fahrhrstuhl *Photovoltaikanlage* ab 01.07.18 bezugsfertig

41849 Wassenberg, Penthousewohnung zur Miete

Referenz

Dieses Objekt wurde bereits erfolgreich vermittelt.

Objekt­beschreibung

Beschreibung

LUXUS in Orsbeck
Neubau mit 5 verschieden Grosse Wohnungen
Penthauswohnung
KALTMIETE IST HIER GLEICH WARMMIETE
Einen seperaten Kleidergalerie im Verbindungsraum von Wohnung und schlafen
Hier hat man die Möglichkeit eine Spiegelseite gegenüber vom Kleiderschrank zu nutzen und sich wohl zufühlen

Moderne Wärmepumpe mit Fussbodenheizung
Phtovoltaikanlage

ab 01.08.18 ist ein Einzug möglich

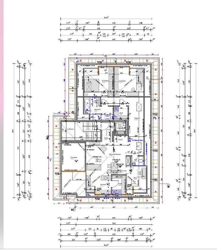
Ausstattung

In dem Neubau sind Möglichkeiten
Terrassenwohnung 74m² und 95m²
Etagenwohnung mit Loggia 65m² und 85m²
Penthauswohnung 111m²
anzumieten
je m² wird warm also inkl Heizung berechnet
pro m² wird 9,95€ angesetzt

Gehobene Ausstattung
Altengerecht
Breite Türeingänge inkl Bewebungsfreiheit in allen Räumen
Fahrstuhl bis zur Penthauswohnung aber natürlich auch über Treppen zugänglich
Terrasse, Dachterrasse oder Loggia für jede Wohnung vorhanden
Alle Böden werden Hochwertig ausgelegt
Fliesen oder Vinylböden
Zum Teil Bodentiefe Fenster
Ebenerdige Dusche

Sonstige Informationen

Ich, Erika Roß von Rossimmobilien
Bin für Sie als Ihre Ansprechpartnerin vom Eigentümer eingesetzt

Lage

Das Mehrfamilienhaus steht mitten in einer gewachsenen Neubau Siedlung

Orsbeck ist ein Ortsteil der Stadt Wassenberg im Kreis Heinsberg in Nordrhein-Westfalen und liegt an dem Fluss Rur. Der Ort hat etwa 2000 Einwohner.
Das Stadtgebiet liegt teilweise im Tal der Rur, im übrigen auf den Hochflächen oberhalb des Rurtales auf dem Wassenberger Horst. Die Stadt ist etwa 15 km von Roermond und etwa 25 km von Mönchengladbach entfernt. Die Niederung der Rur liegt in einer Höhe von 32 bis 40 m über NN. Am östlichen Rand steigt die Wassenberger Terrasse mit einem Steilrand von 40 bis 50 m über das Rurtal an, zergliedert von zahlreichen Tälern, dem Wassenberger Riedelland. Ein Abschnitt dieser Landschaft bei dem Ortsteil Myhl wird auch Myhler Schweiz genannt. Durch die Gemeinde verläuft der Maas-Niederrheinpfad.

Die dargestellte Position der Immobilie ist nur eine ungefähre Angabe.

Darstellung der Immobilien mit WP-ImmoMakler und Daten aus